Architektur, die uns verbindet.

ÄRZTEZENTRUM

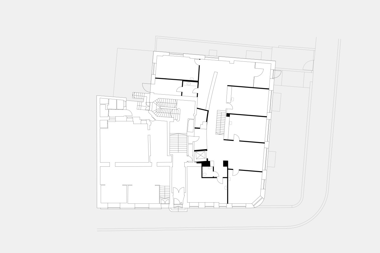
Umbau Geschäftslokal zu einem Ärztezentrum

In einem Jahrhundertwendehaus wurden die ehemaligen Räumlichkeiten eines Supermarktes zu einem Ärztezentrum umstrukturiert. Die vorhandenen Raumhöhen und Flächen ermöglichten es, angenehme, helle und einladende Behandlungsräume für Ärzt:innenschaft und Patient:innen zu gestalten. Ein durchgängiges Empfangspult lässt einen fließenden Übergang zwischen Eingangs- und Wartebreich entstehen. Die Nebenräume wurden im großzügigen Untergeschoß untergebracht und mittels neuer Stiege und Aufzug barrierefrei angebunden. In den 1930er Jahren war im Keller ein Tanzlokal, wodurch ein großzügiges Raumangebot vorhanden ist. Aus diesem Grund konnten Konzepte entwickelt und Vorbereitungen getroffen werden, um eine zukünftige Nutzung für Labor- oder Therapieräume zu ermöglichen.

BauherrIn:
Imed19
Ort:
Wien
Größe:
1.031 m2
Status:
fertiggestellt
Fotografie:
Martin K.